Симпатичная пара решила сделать капитальный ремонт трехкомнатной квартиры в панельном доме. Планировка, которая относится к наиболее распространенным, к сожалению, не позволяет каких-либо существенных изменений. Это, однако, в этом случае это и не было целью.
После того, как дети покинули дом, супруги хотели приспособить жильё к своим потребностям, модернизировать техническую сторону квартиры и оборудовать интерьер так, чтобы он подходил им после выхода на пенсию.
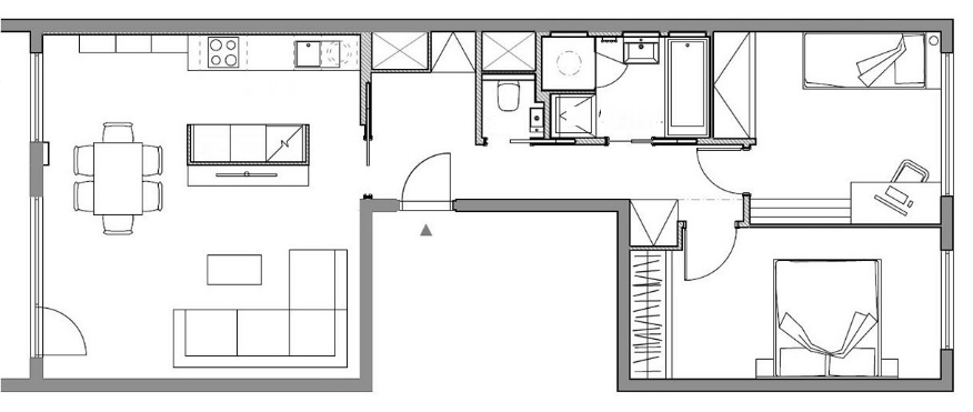
В типичную панельную квартиру вход в относительно узкую прихожую. Из неё вход в ванную комнату, туалет и кладовку, на одной стороне прихожей находятся две комнаты, на другой - гостиная и кухня. Неудобна узкая прихожая, которую даже после ремонта нельзя было расширить.
Хозяева квартиры за решением проблемы обратились к инженеру-архитектору Радовану Деметера из студии Kouba Interier.
Новая планировка
Перепланировка коснулась в основном ванной комнаты и кухни. Кладовка частично присоединилась к ванной комнате, частично на её площади был поставлен встроенный шкаф в комнате. Благодаря этому ванная комната значительно увеличилась, в ней разместилась душевая кабина, ванна и ниша для стиральной машины.
Туалет остался отдельным и на своем месте, добавилась практичная раковина. «Мы сосредоточили свое внимание на создании достаточного количества мест для хранения. Поэтому в ванной комнате и в душевой кабине использованы встроенные ниши. Тумбочка под раковиной с двумя ящиками, за зеркалом спрятан ещё один шкафчик, наше любимое решение," - описывает свой проект архитектора Радован Деметр.
Стиральная машина из-за возраста хозяев и особенно с учетом будущего установлена выше, чтобы было удобнее ей пользоваться. Место под машиной архитектор использовал для ящика для грязного белья. В туалете в нише раковина.
"Мы долго рассматривали возможность объединения кухни с гостиной, подготовили несколько проектов. В конце концов, выиграл вариант оптического отделения двух зон высокими кухонными шкафами," - объясняет архитектор Радован Деметр.
На обратной стороне за шкафами установлен телевизор с тумбочкой, обеденный стол на границе кухни и гостиной. Кухня расположена двумя линиями, обращенными друг к другу. С одной стороны стоят высокие шкафы с холодильником, духовкой и шкафы для продуктов и с нишей для кофеварки. С другой стороны столешница с местом для работы, раковина и варочная панель.
Верхние шкафы опять же для создания мест для хранения до потолка. Кухонная мебель переходит в оборудование столовой в виде легкого подвесного шкафа с нишами.
По практическим соображениям, в ванной, туалете и гостиной раздвижные двери-пенал. В узком коридоре мешали бы, а в гостиной остаются большую часть времени открытыми .
Материалы
Клиенты хотели консервативное решение в теплых тонах, без модных излишеств. Напольное покрытие - винил в декоре светлого дерева. Контраст составляют темные ореховые двери и мебель.
Кухня сделана на заказ из светлого ламината кремового цвета со столешницей в декоре дерева.
Плитку большого формата архитектор Деметр использовал на двух стенах, для более легкого ухода за фартуком стены.
В ванной комнате крупноформатная плитка в оттенках бежевого. "Более выразительный цвет мы использовали для облицовки туалета и ниши, декоративная полоса украшает душевую кабину и заднюю стенку туалета," добавляет автор этого проекта.
Новости сайта на вашу электронную почту:
Это вам тоже будет интересно:
















Комментариев нет:
Отправить комментарий